Распространенные ошибки при работе с сэндвич-панелями
Распространенной ошибкой при исполнении является невыполнение обязанности по проверке ровности опорной плоскости (образованной фрамугами, прогонами), на которой будут основываться кровельные сэндвич-панели. В ситуации, когда сэндвич-панель крыши поддерживается в нескольких пролетах, и одна из средних опор не лежит на линии, образованной краевыми опорами, панель может быть повреждена: часто в панелях, наклоненных таким образом, облицовка из стержень отслаивается, и в крайнем случае наблюдаются трещины стержня. Ровность поверхности, поддерживающей сэндвич-панели, следует подтверждать геодезическими измерениями. Отклонения от плоскостности не должны превышать предельных значений, указанных в конструкции и инструкциях производителя сэндвич-панелей.
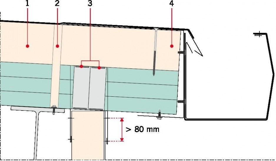
Распространенная ошибка выполнения, приводящая к протечкам и потере герметичности кровли, - это неправильное выполнение стыков между сэндвич-панелями. Ошибки такого типа чаще всего возникают, когда строительные работы выполняются на основе проекта, не содержащего подробных деталей, как показано на фото , фиг. 4 и фиг. 5 . В таких случаях контакты выполняются способом, несовместимым с рекомендациями производителя, без использования соответствующих строительных материалов.
На долговечность кровельных панелей большое влияние оказывают прорезанные в них отверстия (например, люки, дымовые трубы, световые люки). Размеры и форма проемов согласовываются с производителем панели. Отверстия могут механически ослабить кровельную панель и вызвать отслоение облицовки от сердцевины сэндвич-панели .
Способ их хранения и транспортировки (разгрузка и доставка к месту установки) существенно влияет на долговечность и визуальную ценность кровельных сэндвич-панелей. При хранении и транспортировке сэндвич-панелей необходимо строго придерживаться требований производителя панелей. Пакеты элементов с высотой, указанной в инструкции производителя по применению, следует обернуть фольгой и разместить на предварительно подготовленном основании с небольшим уклоном (над уровнем земли) в соответствии с рекомендациями производителя (например, на ДСП или плитах МДФ и пенополистироле. блоки). Расстояние между распорками не должно превышать 2 м. Информация о символике и длине панелей должна быть наклеена на упаковках. Пакеты следует размещать на устойчивой поверхности.
При более длительном хранении рекомендуется укладывать только две упаковки одна на другую с небольшим наклоном к длине панелей, чтобы обеспечить свободный отток конденсата, который может образоваться между панелями. Если количество упаковок увеличить, сэндвич-панели внизу могут быть повреждены.
Во время сборки сэндвич- панели следует вынуть из упаковки. Недопустимо перетаскивать отдельные доски на другие доски, оставшиеся в упаковке. С платами следует обращаться только в положении, указанном в инструкции по сборке. Для транспортировки использовать технические средства, отвечающие требованиям производителя (например, присоски, траверсы).
Распространенная ошибка изготовления - укладка кровельных панелей в продольном направлении (параллельно линии конька). Сэндвич-панели следует укладывать рядами в поперечном направлении - от карниза до конька
Режущие инструменты существенно влияют на долговечность кровли из сэндвич-панелей. Использование инструментов, отличных от указанных в инструкциях производителя, может привести к отсоединению футеровки от сердечника.
Правильная затяжка механических креплений очень важна с точки зрения герметичности крыши и ее несущей способности . Неадекватный крепеж может привести к протечке кровли, а затянутый - к трещине в сердцевине сэндвич-панели.
Инструменты, используемые для их резки и пробивания отверстий, имеют большое значение для долговечности и безопасности кровельных сэндвич- панелей . Инструменты должны соответствовать рекомендациям производителя. Несоответствующие режущие инструменты могут значительно снизить адгезию футеровки к сердцевине. Большинство производителей не рекомендуют использовать угловые шлифовальные машины из-за повреждения антикоррозионных покрытий.
Распространенной производственной ошибкой является оставление металлических опилок на поверхности сэндвич-панелей, связанное с просверливанием отверстий в панелях, вырезанием трещин и т. Д. За довольно короткое время эти опилки могут вызвать повреждение лакокрасочного покрытия на панелях и стать источником коррозии.
Незащищенные, предварительно обрезанные края облицовки также способствуют снижению антикоррозионных свойств панелей. После резки края должны быть защищены защитными покрытиями в соответствии с рекомендациями производителя и соответствующими агрессивной среде.
Использование механических крепежных элементов и герметиков, отличных от тех, что предоставлены производителем, может отрицательно сказаться на долговечности, удобстве использования и безопасности использования. Это может быть связано со снижением огнестойкости, герметичности и коррозионной стойкости.



